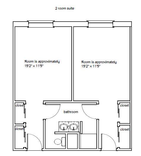
Double Suites consist of 2 rooms within the same suite. Each room will share the bathroom within the suite.
Stubbs Hall Double Suite You Tube
Stubbs Hall Double Suite - A dorm room with two beds, desks, and matching wooden furniture. String lights hang across the wall above a window at the back. Desks sit side by side beneath the window with chairs and personal items. Black and white bedding and decor create a coordinated look.
Stubbs Hall Double Suite - A dorm room with two beds facing a shared entryway. String lights line the walls above black and white bedding. A mini fridge and microwave sit between the beds. Decorated walls display letters, photos, and personal items.
Stubbs Hall Double Suite - A tiled shower with a wall-mounted showerhead and control handle. A green patterned shower curtain hangs partially closed. A corner caddy holds bottles of shampoo and body wash. The shower area is clean with light-colored tile walls.
Stubbs Hall Double Suite - A shared bathroom with a double sink vanity and countertop. Soap, toiletries, and a storage bin sit near the sinks. An open door leads to a hallway with coats hanging nearby. Bath mats in red and black lie on the tiled floor.
Stubbs Hall Double Suite - A bathroom countertop with two sinks set into a shared vanity. Soap dispensers, cups, and toiletries are placed near each faucet. Electrical outlets and a mirror line the wall above the counter. Storage bins and supplies are visible beneath the sink area.
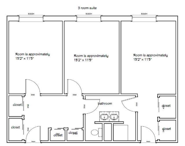
Triple Suite
Triple Suite consists of 3 rooms within the same suite. Each room will share the bathroom within the suite.
Stubbs Hall Triple Suite You Tube
Stubbs Hall Triple Suite - A decorated dorm room with two beds and matching wooden furniture. Desks and shelving units hold books, photos, and personal items. Colorful bedding, wall art, and decor personalize the space. A window at the back brings in natural light between the beds.
Stubbs Hall Triple Suite - A dorm room with two beds, desks, and shelving units. Teal bedding and coordinated decor give the space a cohesive look. A window with curtains provides natural light between the beds. Backpacks, books, and personal items are arranged around the room.
Stubbs Hall Triple Suite - A dorm suite hallway with a large decorative banner on the wall. The banner reads “Sigma Alpha” with additional handwritten text and suite numbers. An open doorway reveals a decorated dorm room with teal bedding. Another doorway leads to a shared bathroom with towels visible inside.
Stubbs Hall Triple Suite - A dorm room with two beds, desks, and storage units on each side. A tapestry and wall decor add color behind one bed. A window with curtains provides natural light at the center of the room. Shelving, bins, and personal items are neatly arranged throughout the space.
Stubbs Hall Triple Suite - A dorm hallway with wooden doors and sliding closet doors. One door has a letter “K” displayed on it. Another set of doors features a small wave photo decoration. The space has plain walls and bright overhead lighting.
Stubbs Hall Triple Suite - A shared bathroom viewed through an open doorway. A long counter with two sinks runs along one wall beneath a mirror. Towels hang on racks, and storage bins sit under the counter. Another door at the back leads into an adjoining room.
Stubbs Hall Triple Suite - A bathroom vanity with two sinks and a large mirror above. Toiletries and paper towels are arranged along the countertop. A shower curtain with a green pattern hangs to the side. Tiled walls and soft lighting give the space a clean appearance.
Stubbs Hall Triple Suite - A bathroom with a toilet partially enclosed by a tiled partition. A patterned black and white shower curtain hangs above. A toilet paper holder and blue bath mat sit along the wall. The space features tiled walls and simple fixtures.
Stubbs Hall Triple Suite - A tiled shower with a wall-mounted showerhead and control handle. A hanging organizer holds bottles of shampoo and personal care items. A small built-in shelf contains a tube of toothpaste. The shower walls are plain with light-colored tiles.