There are active notices and/or alerts. Visit the Alerts site for details >>
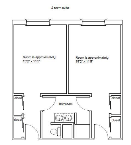
Double Suite consists of 2 rooms within the same suite. Each room will share the bathroom within the suite.
Residential & Commuter Life
Eason G-13
201 High Street
Farmville, VA 23909
(434) 395-2080
Fax: (434) 395-2704
housing@longwood.edu